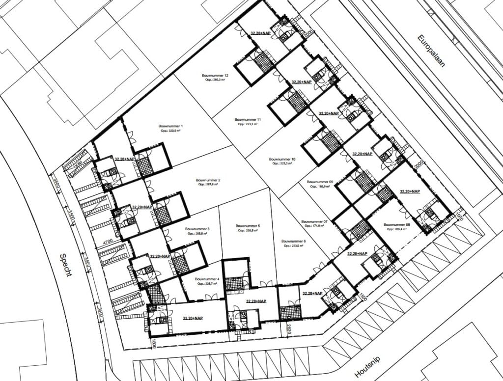
Regelmatig krijgen we de vraag hoe groot de percelen zijn waar de woningen in het nieuwbouwplan Vogelhof op staan. Op onderstaande situatietekening laten we u alvast zien wat de perceelsoppervlaktes per bouwnummer zijn. De groottes variëren van ca. 175 m² tot ca. 320 m². Zo is er voor iedereen wel een passende patiotuin te vinden of u nu wél of geen groene vingers heeft.
Opstelplaats kliko’s
Er is bewust geen achterpad gemaakt bij de achtertuinen. Op deze manier blijft er voor iedereen meer tuin over. Aan de voorzijde krijgen alle woningen een inpandige berging. Hier kunt u bijvoorbeeld uw fiets veilig kwijt. Ook kijken we nog naar een opstelplaats voor uw kliko’s aan de voorzijde van de woning. Netjes afgeschermd van de straat met gaashekwerk begroeid met klimop. Hierover hebben we nog overleg met de gemeente Bladel.

Bouwnummer met perceelsopp m² (circa)
Bouwnummer 1 – circa 321 m²
Bouwnummer 2 – circa 288 m²
Bouwnummer 3 – circa 205 m²
Bouwnummer 4 – circa 236 m²
Bouwnummer 5 – circa 238 m²
Bouwnummer 6 – circa 223 m²
Bouwnummer 7 – circa 175 m²
Bouwnummer 8 – circa 209 m²
Bouwnummer 9 – circa 181 m²
Bouwnummer 10 – circa 223 m²
Bouwnummer 11 – circa 223 m²
Bouwnummer 12 – circa 260 m²
